| 高齢者のお住まいリフォーム その2 |
おじいちゃん・おばちゃんが使う、水まわりをリフォームしました。
| 改修前 |
|
||
![]() |
![]() |
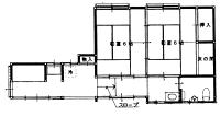
寝室の書院をなくし、広エン部分を少し広げたところへ
便所を設けました。
便所の入口前には、洗面化粧台も設置。小型温水器を使って
お湯も出るようになりました。
洗面も便所も寝室に近いのがいいですね。
| 改修前 |
|
||
![]() |
![]() |
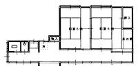
廊下〜部屋もスロープを設けて、段差をなくしました。
| 改修後の便所・玄関 | |
![]() |
|
| 便所 | |
| 便器それぞれに、手摺を取付けました。 | |
![]() |
|
| 玄関 | |
| 上り框段差部に、手摺を取付けました。 |