扇(自動センサー、遅延タイマー付が
                   良いです。)

リフォームプランの紹介

[T] 水まわり―トイレ内部編

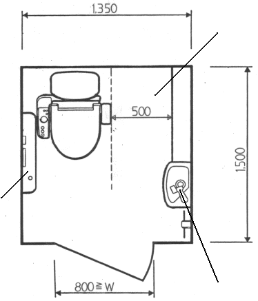
 標準プラン :幅と奥行き寸法は、これだけ確保しましょう。
            ※長寿社会対応も考えましょう。

L型の手すりを取り付けて、杖などの補助具を用いて移動する高齢者の方にとっても使いやすくしたものです。


水洗カラン付
タンクもあります。

  埋込収納 
  壁埋込み
 温風ヒーター




  扉:外開きドア(レバーハンドル)又は、引き戸とし
     外部から開錠できるようにしましょう。
     空気取入れ口を設けましょう。




  L型手すり
樹脂コーティングが
おすすめ。

 埋込み手洗器
自動水栓タイプ
(レバータイプもあり
 ます。)


将来(介助等)を考えたゆとりのプラン
@ゆとりのあるトイレを設置するプラン
  


                           

シャワートイレのコントロールスイッチは壁付にもできます。
   棚手すり
           
 








将来介助に対応
できるよう、幅約
50cmのスペースを
確保しています。













手洗いカウンター



A将来、収納や洗面所をワンルーム化して広くできるプラン

  間仕切り壁は耐力壁にせず撤去      間仕切り壁は撤去  将来は引戸に交換すると出
  できるようにしておきましょう。        できるようにしておき  入がスムーズになります。
                                ましょう